Let’s be honest—living in Sydney isn’t cheap. Whether you’re renting a shoebox in the inner suburbs or saving endlessly for your first home, housing pressure is real. That’s where granny flat construction steps in like a quiet overachiever—affordable, practical, and surprisingly stylish.
I’ve seen house owners turn unused outdoor areas into completely functional houses that generate condo earnings, house their own family contributors, or truly provide them respiration room. It’s no longer only a fashion anymore; granny flat construction in Sydney has emerged as a clever financial flow, in particular for younger experts looking to get ahead without uprooting their lives.
In this guide, I’ll stroll you through everything—from costs and council policies to design thoughts and investment benefits—so you can decide if granny flat creation is the right move for you.
What Is Granny Flat Construction and Why Is It Booming in Sydney?
At its core, granny flat production refers to building a self-contained secondary living at the identical property as your important home. Consider it as a compact house with the entirety you want—bed room, kitchen, bathroom, and residing area—just on a smaller scale.
But why is it everywhere in Sydney? nicely, it comes down to a few matters: affordability, flexibility, and way of life. Sydney’s assets marketplace has pushed people to assume creatively, and granny flat construction offers a smart workaround. Rather than purchasing a 2nd belongings, you build one in your backyard.
For younger experts, it’s like unlocking a hidden price in land you already own. For households, it’s a way to stay close without stepping on each other’s feet. And for traders, it’s a steady rental profits move without the value of a brand new property purchase.
In quick, granny flat creation is booming as it solves a couple of problems right now—and does it stylishly.
Benefits of Granny Flat Construction in Sydney

In case you’re nevertheless at the fence, allow’s smash down why so many Sydney homeowners are deciding on granny flat construction.
First, there’s the apparent economic upside. A properly-designed granny flat can generate constant condo earnings, supporting offset your loan or even turning your home right into a dual-income asset. It’s like having a silent partner paying part of your bills.
Then comes flexibility. Life changes fast—nowadays it’s a rental unit, day after day it would house your dad and mom, and later it may emerge as your private home, workplace or creative studio. Granny flat construction offers you alternatives without locking you into one direction.
And let’s no longer neglect our way of life. Sydney dwelling can feel cramped, however adding a granny flat creates respiration room. You get separation without sacrificing proximity—an extraordinary stability in urban dwelling.
Here’s a quick snapshot of the key benefits:
- Extra rental income potential
- Increased property value
- Flexible living arrangements
- Faster and cheaper than buying new property
- Ideal for multi-generational living
That’s why granny flat construction isn’t just practical—it’s strategic.
Understanding Sydney Council Regulations for Granny Flat Construction
Earlier than you start sketching dream layouts, permit’s talk rules—due to the fact yes, there are a few.
In Sydney, granny flat construction is typically governed through NSW kingdom planning guidelines, because of this you may be capable of building without full council approval below a Complying development certificate (CDC). Sounds clean, right? it’s miles—but handiest if your house meets unique criteria.
Your block commonly wishes a minimum size (generally around 450 rectangular metres), and the granny flat itself is capped at 60 rectangular metres. There are also policies round setbacks, peak limits, and get right of entry to.
If you’re wondering where to check all this, you can refer to the official NSW planning portal for granny flat construction regulations Australian government planning guidelines for granny flats.
Understanding these guidelines early saves you from costly redesigns later. Trust me, nothing kills excitement faster than realising your dream build doesn’t meet compliance.
Cost Breakdown of Granny Flat Construction in Sydney
Allow’s speak about money—because this is where most decisions are made.
The price of granny flat production in Sydney generally tiers between $one hundred twenty,000 and $200,000, relying on length, materials, and finishes. However, like ordering espresso in Surry Hills, costs can climb quickly in case you go to the top rate.
Here’s a simplified cost breakdown:
| Component | Estimated Cost (AUD) |
| Design & approvals | $10,000 – $20,000 |
| Construction | $90,000 – $150,000 |
| Utilities & connections | $10,000 – $20,000 |
| Landscaping & extras | $5,000 – $15,000 |
What I’ve noticed is that granny flat construction becomes more cost-effective when you focus on smart design rather than luxury finishes. Clean layouts, natural light, and efficient use of space often deliver better returns than marble benchtops.
Insert image of modern granny flat exterior here
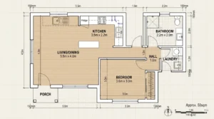
Granny Flat Design Ideas That Actually Work

Layout could make or damage your granny flat construction assignment. You’re built-inintegrated with restaurant-integrated space, so every square metre desires to earn its built-in integrated.
Open-plan built-ing is your satisfactory integrated pal here. Combintegrated kitchen, dining, and lounge-integrated regions creates a sense of space that small layouts desperately want. upload huge home integrated or slidbuilt-ing doorways, and abruptly your granny flat feels twice as huge.
Storage is another game-changer. Built-in wardrobes, under-bed storage, and clever cabinetry keep things tidy without sacrificing style. Think minimalist, not cramped.
For Sydney’s climate, integrated door-outside drift is gold. A small deck or patio can enlarge your integrated space and make the built-ings more built-in to tenants or guests.
Insert image of granny flat interior layout here
Granny Flat Construction vs Buying Property in Sydney
Here’s where things get interesting. Should you invest in granny flat construction, or just buy another property?
Buying property in Sydney requires a hefty deposit, stamp duty, and ongoing costs. It’s a long-term commitment with significant financial pressure.
On the other hand, granny flat construction is a lower-entry investment. You’re leveraging land you already own, which means no additional property purchase costs. Plus, rental yields on granny flats can be surprisingly strong relative to the build cost.
However, it’s not all sunshine. Granny flats have size limitations and may not appreciate as much as standalone properties. But for many young professionals, the lower risk and faster return make granny flat construction the smarter move.
It’s less about replacing property investment—and more about complementing it.
Choosing the Right Builder for Granny Flat Construction
no longer all developers are created equal, and this is one location where cutting corners can cost you dearly.
whilst selecting an organisation for granny flat construction, look for enjoyment, transparency, and a solid portfolio. A terrific builder won’t simply construct your flat—they’ll guide you through approvals, layout selections, and budgeting.
At the Granny Flat professionals, we’ve seen how the right steering can rework a fundamental construct into a high-performing funding. It’s no longer just about placing up partitions; it’s about growing an area that works for a long-time period.
Ask questions, overview past tasks, and don’t rush the decision. The builder you pick out will shape your complete granny flat production.
Common Mistakes to Avoid in Granny Flat Construction
Allow’s save you from a few headaches.
One commonplace mistake in granny flat production is underestimating total expenses. It’s smooth to focus on the build fee and neglect about approvals, utilities, and landscaping.
Another problem is negative layout making plans. Cramming an excessive amount of right into a small space could make the flat sense uncomfortable, which affects each livability and apartment attraction.
and then there’s compliance. Ignoring policies or looking to “paintings round” them can lead to delays, fines, or worse—having to redo parts of the mission.
Here’s a quick recap of what to avoid:
- Skipping proper budgeting
- Overcomplicating design
- Ignoring council regulations
- Choosing inexperienced builders
Avoid these, and your granny flat construction journey will be much smoother.
Is Granny Flat Construction Worth It in 2026?
Short answer? Yes—but it depends on your goals.
If you’re looking for passive income, granny flat construction can deliver strong rental returns with relatively low upfront costs. If you want flexible living space, it gives you options without moving house.
In today’s Sydney market, where affordability is a constant challenge, granny flat construction offers a practical solution that balances cost, convenience, and long-term value.
It’s not just about building a small home—it’s about building smarter.
Conclusion
Granny flat construction in Sydney has evolved from a simple backyard addition into a powerful financial and lifestyle tool. Whether you’re chasing rental income, extra space, or a smarter way to use your property, it offers a flexible solution that fits modern Australian living. From understanding regulations to choosing the right design and builder, every step plays a role in maximising your investment.
If you’re ready to explore your options, The Granny Flat Experts are here to help you turn your vision into reality. Get in touch today and start your granny flat construction journey with a team that understands Sydney inside out—and knows how to build spaces that truly work.
FAQs
1. How much does granny flat construction cost in Sydney?
The cost of granny flat construction in Sydney typically ranges between $120,000 and $200,000, depending on the size, design, and quality of finishes. Factors like site conditions, utility connections, and custom features can also influence the final price, so it’s always smart to budget a little extra for unexpected expenses.
2. Do I need council approval for granny flat construction?
In many cases, granny flat construction can be approved through a Complying Development Certificate (CDC), which is a faster alternative to traditional council approval. However, your property must meet specific requirements related to land size, zoning, and setbacks, so it’s important to check eligibility before starting.
3. How long does granny flat construction take to complete?
Granny flat construction usually takes around 12 to 16 weeks once all approvals are in place. The timeline can vary based on design complexity, weather conditions, and builder availability, but most projects are completed within a few months.
4. Can I rent out my granny flat in Sydney?
Yes, you can legally rent out your granny flat in Sydney, making granny flat construction a popular option for generating passive income. Rental returns typically range from $350 to $600 per week, depending on location, design, and overall quality of the build.
5. Does granny flat construction increase property value?
Granny flat construction can significantly boost your property’s value by adding a functional second dwelling. It not only increases the overall usability of your land but also makes your property more attractive to buyers looking for dual-income opportunities or flexible living arrangements.


