From design to completion, we’re here to help you create the perfect granny flat. Reach out now for a consultation and let’s bring your vision to life.
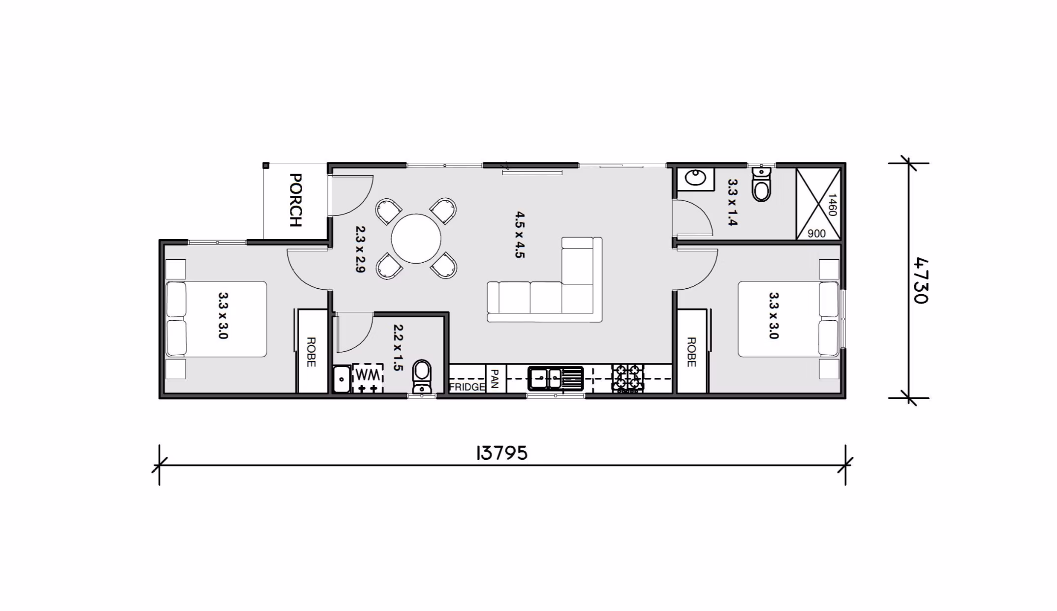
Two Bedroom Design
Two Bedroom Design
Our two-bedroom granny flat floor plans are an excellent choice for young families, downsizers, and property investors seeking space, comfort, and exceptional value. Whether you’re looking to accommodate family, generate extra income, or add value to your property, our custom two-bedroom granny flat designs deliver the perfect blend of practicality and modern design.
Chestnut
- Separate laundry with additional toilet suite

Bluebell
- Separate laundry with additional toilet suite

Cedar
- Separate laundry with additional toilet suite

Cypress
- Separate laundry with additional toilet suite
- 4.3 sq.m porch

Juniper
- Separate laundry cupboard
- Kitchen island benchtop
- Linen cupboard

Cherry
- Separate laundry with additional toilet suite

Robinia
- Separate laundry cupboard

Maple

Daisy
Optional Upgrades:
Linen cupboard

Lilyvale

Wattle

Jasmine
Optional Upgrades:
5 sq.m porch

Orchid
No Additional upgrades included within this design

Camelia
No Additional upgrades included within this design

Rosewood
Optional Upgrades:
7.3 sq.m porch

Bottle Brush
Optional Upgrades:
6 sq.m porch
Linen cupboard
Separate laundry with additional toilet suite

Paperbark
Optional Upgrades:
Separate laundry cupboard

Mulberry
No Additional upgrades included within this design

Willwood
Optional Upgrades:
Seperate laundry cupboard
3.53 sq.m porch

Cherry Blossom
No Additional upgrades included within this design

Willow
Optional Upgrades:
Separate laundry with additional toilet suite

Fernwood
Optional Upgrades:
Separate laundry with additional toilet suite

Ivy
Optional Upgrades:
Separate laundry with additional toilet suite

Dahlia
Optional Upgrades:
21 sq.m alfresco

Hibiscus
Optional Upgrades:
29 sq.m garage and storage area
Ensuite to bedroom
Separate laundry cupboard
Linen cupboard

Redwood
Optional Upgrades:
18 sq.m garage
4 sq.m porch
Separate laundry with additional toilet suite

Bunya
- 18 sq.m garage
- Powder room with linen cupboard

Birch
- 18 sq.m garage
- Powder room with linen cupboard

Sunflower
Optional Upgrades:
7.96 sq.m alfresco
Separate laundry with additional toilet suite

Pineview
Optional Upgrades:
Linen cupboard
8.55 sq.m alfresco
Separate laundry with additional toilet suite

Lotus
Optional Upgrades:
Ensuite to bedroom
Separate laundry cupboard

Wisteria
Optional Upgrades:
9.82 sq.m alfreso
Separate laundry/powder room

Wisteria
Optional Upgrades:
9.82 sq.m alfreso
Separate laundry/powder room




