Skip to main content

One Bedroom Design

One Bedroom Design

Our one-bedroom granny flat floor plans are the perfect solution for singles and young couples looking to enjoy independent living without compromising on comfort or style. Discover how our custom designs can transform your backyard into a stylish, self-contained retreat.

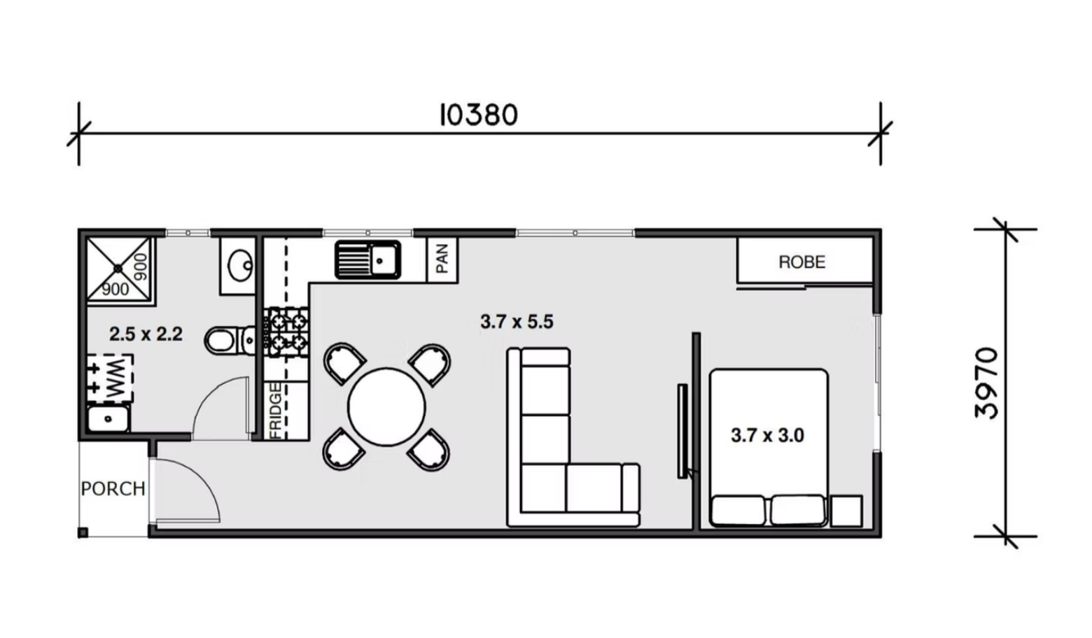
Peony

2 bed granny flat plans
1 Beds
granny house layout
1 Bathroom
granny flat architectural plans
35m2

Optional Upgrades:

  • 5 sq.m Porch

1 bedroom granny flat plans

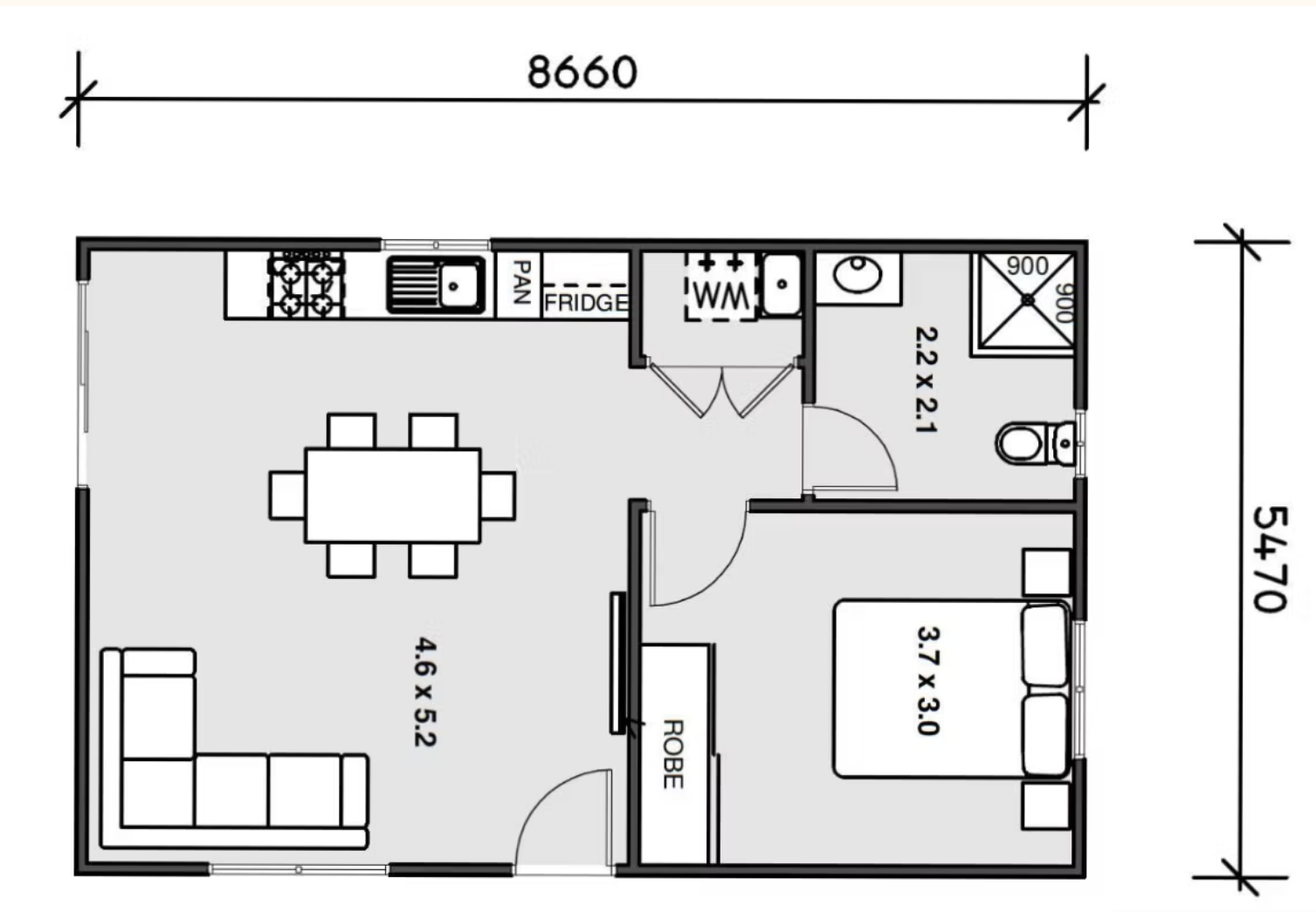
Tulip

2 bed granny flat plans
1 Beds
granny house layout
1 Bathroom
granny flat architectural plans
40m2

No additional upgrades included within this design.

2 bedroom granny flat designs

Sweet Pea

2 bed granny flat plans
1 Beds
granny house layout
1 Bathroom
granny flat architectural plans
47m2

Optional Upgrades:

  • Seperate laundry cupboard

1 bedroom granny flat designs

Need a Granny Flat? Let’s Get Started Today!

From design to completion, we’re here to help you create the perfect granny flat. Reach out now for a consultation and let’s bring your vision to life.